ステキな生活はステキな住まいから。どうもスムハジメです。
今年最後のブログとなりそうです。2025-2026年にかけて最注目のプロジェクト「ブランズ星が丘テラス」東急不動産が数年越しに名古屋で供給する大規模ランドマーク物件。今回はその物件を発売前に先取りしました。(物件自体は現在一期一次案内開始)
忖度なく、結構真剣に読み解いて書き込んだブログになっておりますので、是非最後までお読み頂けますと幸いです。
前編まとめ
ポエムから読み解く思想と世界観
「らしく、気高く、輝く。」というコピーを軸に、星ヶ丘という街の誇りや成熟した価値観、静けさと知性を纏う暮らしを表現。マンションポエム自体を“設計思想の入口”として真正面から評価しています。
立地と再開発の価値
星ヶ丘駅前の大規模再開発(約18,500㎡)の一角・二期B区に誕生。周辺には大学施設、蔦屋書店併設図書館、劇場などが予定され、文教・文化・商業が融合するエリアへ進化。高台立地でハザード面も安心、学区評価も高水準です。
定期転借地権という選択
本物件は定期「転」借地権。地代や解体積立金の調整をデベロッパーが介在する点を評価し、長期居住時の不安を軽減できる可能性に言及しています。
建物・住戸の圧倒的個性

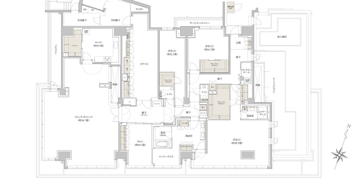
最大の目玉は東海エリア最大級となる362㎡の最上階ワンフロア住戸。天井高3,000mm、サッシ高2,700mmのスーパーハイサッシ、ホワイエやインナーテラスなど、邸宅的発想を徹底した唯一無二のプランが紹介されています。
前編ブログ詳細はコチラから:この丘は、星を見上げるためにあった。-THE STELLA SUITE-【スムハジメ】
物件概要
| 物件名称 | ブランズ星が丘テラス |
| 所在地 | 愛知県名古屋市千種区星が丘元町1601-4(地番) |
| 交通 | 地下鉄東山線「星ヶ丘」駅 徒歩4分 |
| 総戸数 | 129戸(販売非対象住戸26戸含む) |
| 完成予定 | 2028年1月下旬予定 |
| 入居予定 | 2028年3月下旬予定 |
| 駐車場 | 駐車場:111台(タワーパーキング:84台、機械式駐車場:17台、平面駐車場:10台)(月額使用料:未定) |
| 自転車置場 | 自転車置場/住宅129台(月額使用料:未定) |
| 売主 | 東急不動産株式会社・名鉄都市開発株式会社 |
| 設計・監理 | 株式会社IAO竹田設計 |
| 施工 | 鉄建建設株式会社 |
| 管理会社 | 株式会社東急コミュニティー |
| 販売状況 | 第1期1次事前案内会 |
| 販売戸数 | 未定 |
| 販売価格 | 未定 |
| 最多販売価格 | 未定 |
| 間取 | 2LDK・3LDK(予定) |
| 専有面積 | 72.13m2~362.80m2(予定) |
| 管理費(月額) | 未定 |
| 修繕積立金(月額) | 未定 |
| 修繕積立基金 | 未定 |
| その他諸費用 | 未定 |
外観含めて街のランドマーク物件となり得るマンションです。立地も星が丘テラス直結。本当に所有権では出てくることのない立地と言っても過言ではありません。
外観・共用部
帰ってきた東急不動産ということで2026年に東急不動産は名古屋で星ヶ丘と今池の2大プロジェクトが控えております。
ブランズ星が丘テラスはその第一弾ということもあり、結構力が入っている感じがします。
外観パースより

こちらのパースはブランズ星が丘テラスを南西角側から撮影?描いたパースとなりますがダイレクトウインドウもあり、バルコニー手摺は透明なガラス手摺を使用しており、かつ軽くアーチも付いていて非常にデザイン性に長けた、まさにランドマークに相応しい外観のマンションといえるのではないでしょうか。
若干気を付けるべきはダイレクトウインドウ。
よくよく見ると上部と下部にガラスが分かれているのですが・・・

上部の部分においては梁があり、外から見ると結構大きい窓面に見えるのですが中は梁下からが窓面となるので、外観ほどの解放感は少ないような気もします。
共用図面より
実はあの二層吹抜のメインエントランスかと思っていた箇所は店舗で・・・(笑)

意外にもメインエントランスはあっさりしていて。
みなさんが見ている車寄せパースのこちらはコーチエントランス側なのです。

メインエントランスが殺風景というよりも、コーチエントランスがとっても豪華という方がしっくり来るかもしれません。
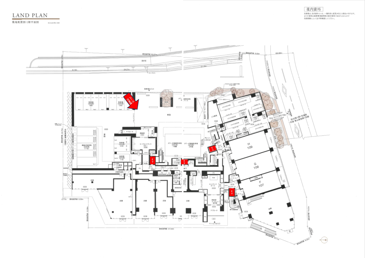
エレベーター

尚、エレベータは4基あり概ね2~3邸に1基という割合。
129戸に対して4基なので台数としては多く、待ち合いの時間は少ないのではないかと思っております。
マンクラが好きではない幅狭エレベーターという点を除けば問題はないでしょう。
内廊下でも台数を切った為、中住戸でも窓面が作れているという点が魅力です。
駐車場
今回、ブランズ星が丘テラスの為に敷地内に新しい道路(車路)が作られております。
ひょっとしたら一方通行となるかもしれませんが、これは結構すごいことで。
加えて広大な土地があったため、車寄せ含む車路も結構ゆったりと設けられており車社会である名古屋市民にはありがたい仕様となっています。
駐車場も平置き・タワーパーキング・機械式とあり、いずれの駐車場へも雨に濡れることなくアクセスできるというのが高評価。
ブランズ星が丘テラスは駐車場の付置率が約86%。
ただ、郊外大規模かつほぼ全住戸が1億円近いことを考えると100%でも良かったのではないかと思いつつ、ここは販売の進捗を見ながら完売ちょい前くらいに成否が問われるところかなと思っています。
その他共用部
その他共用部については、まだHP上では公開がありませんが・・・
- ゲストルームが2室
- 大型の洗濯機を用意したランドリールーム
- キッズルーム
があり、パーティールームは星ヶ丘テラスと地続きという事もあり星ヶ丘テラスを利用して欲しいとのことで用意しないとのこと。

確かに星ヶ丘テラスを直接利用できる立地にあるということはこういった共用部を自物件敷地内に用意しなくても良いという魅力的な立地であるということと同時に管理上もメリットになるのではないかとも思います。
実際にスポーツジムなら徒歩圏にチョコザップもコナミスポーツもある訳で。
ピラティススタジオも星ヶ丘テラス内にありました。
専有部について
実際に多くの仕様等はまだ見れておりませんが・・・
営業さんに聞いた範囲の話でいきますと・・・
標準仕様の住戸で天高2500mm、サッシ高2200mm。
キッチンと洗面台はフィオレ?(シーザー?)ストーンの天然石を全室採用とのこと。
間取について
※今回あまりネットに掲載しないで欲しいとの話でしたので文字のみでの記載で※
※実際に幸せ富動産へ相談にお越しいただいた方へは図面を用いて説明させていただきます※
角住戸は満足度の高い文句なしのLDで解放感も感じられるのではないでしょうか。
ただ、内廊下の仕様かついわゆる住戸が横並びのタワー系間取ではなく、板状マンション間取ということもあり、横リビング住戸も多数あります。
また、縦リビング住戸においては二室一室で採光をとっていることもあり、所謂「行燈部屋」がいくつか点在しています。
さらに片側アウトフレームなので基本的に洋室側は柱を喰っているというのがデフォルトです。
そして下がり天井(梁)が割と多い。折り上げ天井になったり、間接照明が入っていたりすると結構魅力なのですが、実際はどうなのでしょう。どなたかご来場の際に営業の方に聞いてみてください。
マーケット感(2025.12時点)
周辺新築マンション
| 物件名 | アドレス | 最寄駅までの距離 | 坪単価 |
| ローレルコート星ヶ丘レジデンス | 名東区にじが丘3 | 星ヶ丘駅徒歩10分 | 308万円 |
| プレサンスロジェ星ヶ丘駅前 | 千種区星が丘元町 | 星ヶ丘駅徒歩2分 | 335万円 |
| パークホームズ一社 | 名東区一社1 | 一社駅徒歩2分 | 318万円 |
実際に競合はそこまで多くはないものの、所有権の物件達が上記の単価です。ブランズ星が丘テラスはエリアで見ても比較対象の少ないランドマーク物件となりますが、とは言え定期借地権の物件のため、どこまで単価を引き上げられるかはきちんと目利きをしなければなりません。

周辺中古マンション
| 物件名 | アドレス | 最寄駅までの距離 | 築年 | 面積 | 坪数 | 価格 | 坪単価 |
| シティハウス星ヶ丘ヒルトップ | 名東区亀の井1 | 星が丘駅徒歩9分 | 2018年5月 | 78.36㎡ | 23.67坪 | 5,200万円 | 220万円 |
| バンベール星ヶ丘ヒルズ | 千種区桜が丘 | 星が丘駅徒歩11分 | 2015年2月 | 102.65㎡ | 31.01坪 | 7,480万円 | 241万円 |
| サンクレーア星ヶ丘 | 千種区星ケ丘2 | 星が丘駅徒歩7分 | 2014年7月 | 76.89㎡ | 23.23坪 | 5,300万円 | 228万円 |
| ヴィアーレ星ヶ丘の森 | 名東区扇町2 | 星が丘駅徒歩17分 | 2014年2月 | 72.28㎡ | 21.84坪 | 3,780万円 | 173万円 |
| ヴィラス星ヶ丘の森 | 名東区扇町2 | 星が丘駅徒歩16分 | 2012年2月 | 86.67㎡ | 26.18坪 | 4,580万円 | 175万円 |
ブランズ星が丘テラスが高い安いの前に知っておいて頂きたいのは現在のマーケットの状況。大手財閥系の中古マンションでも築年数7年程度で坪220万円。全体的に幅を持たせても現時点では坪170~250くらいというのが星が丘駅周辺のポテンシャルだという事は知っておいて欲しいところです。
価格
今回は個別の価格表の開示は控えて欲しいとのことで単価だけお伝えとなりますが
おおよそ坪単価400~420万円くらいです。
なので
- 72㎡の住戸で平均9,000万円前後くらい。
- 80㎡の住戸で10,000万円超くらい。
正直、ヒヤリングベースですが西向き低層被りのある住戸(72㎡)で8,500~8,990(後半)万円くらいとのことなので、まぁ当初想定通りの金額という感じ。(ユニットが大きい分グロスは思ってたよりも高いですが・・・)
スムハジメのイメージは見せ価格このくらいのスタートで実際の売出が370とか380万円くらいなのかなぁというところです。(だったら、今は妥当かなぁと感じられるライン)
ランニングコスト
※表がだいぶ大きいため、スマホ等で見づらい方は画面を横にして見てください。

- 月額合計1: 「月払地代」+「解体準備積立金」の合計です 。
- 月額合計2: 「管理費(全体+住宅)」+「修繕積立金(全体+住宅)」+「インターネット」+「事務手数料」+「ルーフバルコニー(対象のみ)」の合計です 。
毎月支払総額が月々支払うランニングコストとなります。
そして、ランニングコストについて解説してまいりますが・・・。
スタートから総額が995円/㎡となっています。
管理費・修繕積立金が560円/㎡くらい
地代・解体準備金が430円/㎡くらい。
正直これはあまりにも重いという印象。
だって、72㎡の一番小さいユニットを検討するにあたっても
(まだ駐車場代が出ていませんが)駐車場代含めたらランニングだけでおおよそ10万円くらいいってしまう。
正直サラリーマンには結構厳しい価格感だと思っています。
また、修繕積立金は当然ながら今後も上がっていくことを想定すると・・・
確実に全世帯ランニングコストで10万円は超える。
普通の世帯が住めない、まさに住む人を選ぶマンションではないかと思います。
ここまで一般の方の居住が向かないと必然的に資産性にも影響があると思っております。
(かといって全戸が富裕層向けかと言うともちろん、それは違うと思うので・・・)
あと、小さなことですが定期「転」借地権になったことにより事務手続業務費が月額550円/戸あたり掛かるようになっております。

検討時の注意点
今回全体を網羅してみてスムハジメが直感的に気になった箇所だけをいくつかピックアップしておきます。
ゴミ置場
内廊下でエレベーターも分けてトランクルームもあるものの、各階ゴミ置場がないっ‼
24時間ゴミ置場があるものの、この価格帯のランドマーク物件でタワマンではないとはいえ各階ゴミ置場がないのは個人的には結構痛いです。
ただ、内廊下で廊下を3邸毎に切っているので各階ゴミ置場があった時の清掃員の方のオペレーションを考えると管理費がこれ以上バカ上がりしそうなので、ブランズ星ヶ丘テラスにおいては無くて良かったと思っていただければと思います。
ただ、住むうえではスムハジメ的には欲しかったなぁァァという話。
ランニングコスト
これ結構問題で。。。固定費も含むので若干の差があれど995円/㎡前後。
これは結構重いと思っています。
地代と解体準備金だけで430円/㎡していて、仮に一番小さい72㎡の部屋で計算しても月額31,000円。仮に35年住んだとして約1,300万円、87㎡の住戸なら約1,470万円のコストが物件と管理費修繕積立金とは別にかかってくる。おおよそ坪単価60万円くらい。
ブランズ星ヶ丘テラスの純粋な坪単価が400~420万円だとして、地代等を含めると約460~480万円くらい。
9,000万円の住戸なら10,300万円のマンションと同等の支払だし、11,000万円の住戸なら12,500万円ほどのマンションと同等の支払いとなる。
スムハジメは定期借地権の魅力は何よりも所有権では住めないような場所に割安で住めることと思っています。
ただ、この金額って今の周辺の所有権よりも「かなり高い」印象。
所有権同士でこの価格なら高いけど、悩むなぁ・・・と言えるのだけれども・・・
定期借地権でかつランニングコストを含めると所有権物件よりも頭一つ単価が高くなる。
となると、スムハジメは今ブログを書いている時点ではその他周辺や競合の所有権物件を見学しても良いのかなぁと思ってしまう・・・。
もちろん、規模感や共用部、周辺環境に多少の差はあれど実際に千種駅前のバンベール千種ザ・レジデンスは所有権で駅近で坪400万円ちょっとだ。
対抗勢力は覚王山の所有権マンション達くらいだろうか・・・。
ザ・ライオンズ覚王山やザ・パークハウス覚王山等は坪500万円いくもんね。(でも所有権)
いずれ郊外も坪単価450~500万円時代が来るかもしれないけれど。
所感
全体的にディティールや物件そのものに対してはほとんど文句ない物件でした。
実際に外観もカッコいいし。
ただ、値段は周辺の地上物件と比べたら圧倒的に「星」だった。
「選ばれてきた星が丘で、今、私は選ぶ側になる。」
これは買う側の目線ではなく、売る側の目線だったのだ。
住む方は確実に選ぶ物件。
ランニングを払っても痛くない世帯には是非ご検討いただきたい物件。
立地は抜群だけれどもリセール時にこのランニングは確実にボディブローのように響いてきます。
なんども書いているように住むには文句のない抜群の立地だけれども月々のキャッシュフローはきちんと計算してから臨んで欲しいなぁ。というのがスムハジメの率直な意見です。
本当は間取とかも掲載して良ければおススメ住戸とかも話せたのだけれどもとりあえず第一期一次が終わったら、その辺りは執筆していきたいと思います。
そしてスムハジメはこれを機に「星が丘に選ばれるような人間」になろうと思いました。
今回はそんなマンションのお話でした。
Table of Contents
CONTACT お問い合わせ
物件に関するお問合せや
内覧のご予約はこちらから




